KYB系列(不锈钢、铝合金、铸铁)自吸滑板泵是我公司独立研制、开发、生产的一种国内外最新型产品,该泵具有自吸能力强,轴功率利用高,使用寿命长的独特优点,在恶劣环境中如没有电源动力的山川中,可配柴油机作为动力装置,在特定环境中是理想的移动消防泵,使其具有广泛的适用范围。其优点在于: 工作前不必向泵内灌入油液,既可以自行抽吸,输送油料,同时不怕油污和一般性的杂物,不怕管内进入空气。因此当油罐、油槽车等需要抽吸清扫底油时,使用此泵,将显著提高工作效率,减少油料浪费,提高经济效率。除以上特点外,还具有以下显著特点:
5:泵内装有安全阀,当泵或管道发生故障或误将排出安全阀完全关闭而生高压和高压冲击时安全阀就会自动打开,卸除部分或全部高压液体回到低压腔,从而对泵和管道起到保护作用。
7:本系列泵均可采用填料密封以弹性好耐高低温,化学性能稳定且有滋润化作用的柔性石墨作为填料。该产品可对轻油、化工、煤油和运动粘度在200厘斯以下的各咱润滑油进行抽吸和输送,配用铜齿轮可输送内点低液体,汽油、苯等,主要用于油库、加油站、火车站、汽车队、油船等的抽吸、倒罐、装车、扫舱等。也可用作机动加油车、油罐车用泵等。不锈钢滑板泵系列还可以输送饮料以及任意浓度的酸,碱液,氧化剂及其他类腐蚀介质。铸铁滑板泵系列也可输送水质材料作为移动消防泵。
使用与注意事项
1、工作场所应严格按照防爆环境特定标准和要求执行。
2、该泵非工作时不得随意空转,工作时空转最好不要超过二分钟。
3、电器电路系统应按照油罐操作,防护,安全常识和程序进行,可靠地接好接地。
4、泵的旋转方向是否符合要求。(若从泵往电机看,旋转方向为逆时针)
5、通电启动时,电机如不能正常转动,应立即关掉电源,查明原因,防止烧坏电机。
6、工作临终前,可将吸油抬离油面,将管内余油排尽,随即关掉电源。
7、该泵收存时,最好在专业室内存放,使用时,不要被雨水或其他液体浸湿,小车轮尽量避免沾染油液,油污。
8、接通电源,瞬间启动电机,从电机风罩观看转向是否与泵体前盖上指示的箭头方向一致,否则应调整电源接线头。
9、电器线路,输油管路准备工作完毕后,即可启动工作,启动一分钟左右,应正常吸输油料,否则应进行检查分析原因排除故障。
10、电源线应选用3*1.5+1*1规格或容量稍大的优质橡套电缆线。电源为308v,电源开关应选用15A以上空气开关,同时,尽量缩短电缆线长度和开关与泵工作点的距离。
11、输油管路采用与滑板泵相同规格的钢丝编织胶管(排出管可采用尼龙软管或耐油橡胶管)在于KCB标准软管阴端接头相接并用管卡紧固密封后再分别与泵体的进出口分别连接。吸入管长度不宜超过8米,排出管不宜超过40米。
12、本系列泵具有良好的自吸性,每次开泵前不需灌入液体,日常工作时也无需另加润滑液。
13、该泵利用弹性联轴器传递动力可以补偿安装时所引起的微小偏差,在泵工作中受到不可避免的液压冲击时能起到良好的缓冲作用。
14、工作完毕后,将设在泵壳下部的放油阀拧开,从电机连接器上扭动电机,放尽泵内存油。
15、铸铁滑板泵输送水质材料时要进行保养,十五天为一周期进行检修,可加入防锈粉防止泵体生锈影响正常工作。
易损件细表
|
名称 |
材料 |
件数 |
|
密封圈 |
进口骨架油封 |
2 |
|
密封圈 |
耐油骨架油封 |
2 |
|
密封圈 |
柔性石墨 |
2 |
|
轴承 |
25*20*20 |
2 |
|
轴承 |
25*22*30 |
2 |
|
轴承 |
39*35*30 |
2 |
|
安全阀弹簧 |
中Ⅱ钢丝 |
1 |
性能参数
|
型 号
|
扬程
(m)
|
流量
(m3/h)
|
电机功率
(KW)
|
吸程(m)
|
5 m垂直高度自吸时间S
|
防爆电动机 (v)
|
转速
(r/min)
|
材料
|
|
KYB25-10-30
|
10
|
10
|
0.75
|
9
|
30
|
380
|
2900
|
整体铝合金
|
|
整体不锈钢
|
|
KYB40-20-30
|
20
|
30
|
1.5
|
9
|
30
|
380
|
2900
|
整体铝合金
|
|
整体不锈钢
|
|
KYB50-25-25
|
25
|
25
|
3
|
9
|
30
|
380
|
2900
|
整体铝合金
|
|
整体不锈钢
|
|
KYB65-32-25
|
32
|
25
|
3
|
9
|
30
|
380
|
2900
|
整体铝合金
|
|
整体不锈钢
|
|
KYB80-40-20
|
40
|
20
|
4
|
9
|
30
|
380
|
2900
|
整体铝合金
|
|
整体不锈钢
|
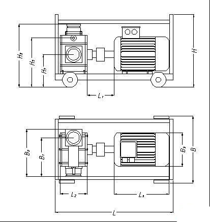
外形尺寸

|
型 号
|
L
|
L1
|
L2
|
L3
|
H
|
H1
|
H2
|
H3
|
B
|
B1
|
B2
|
B3
|
|
KYB25-7-30
|
570
|
145
|
85
|
315
|
365
|
280
|
260
|
260
|
270
|
210
|
80
|
120
|
|
KYB40-20-30
|
700
|
165
|
130
|
345
|
450
|
185
|
295
|
270
|
370
|
200
|
350
|
350
|
|
KYB50-25-25
|
700
|
165
|
130
|
345
|
450
|
185
|
295
|
270
|
370
|
200
|
350
|
350
|
|
KYB65-32-25
|
700
|
168
|
160
|
345
|
450
|
205
|
322
|
425
|
415
|
255
|
300
|
200
|
|
KYB80-40-20
|
700
|
168
|
160
|
345
|
450
|
205
|
322
|
425
|
415
|
255
|
300
|
200
|
|
柴油动力型泵 DKYB-50-25-25
|
665
|
100
|
150
|
280
|
690
|
280
|
385
|
360
|
625
|
345
|
345
|
450
|
|
柴油动力型泵 DKY-65-32-25
|
780
|
170
|
160
|
250
|
700
|
290
|
405
|
400
|
575
|
370
|
370
|
48
|