JYWQ系列自动搅匀排污泵

概述
JYWQ、JBWQ、JPWO系列自动搅匀排污泵是在普通排污泵的基础上采用自动搅拌装置,该装置随电机轴旋转,产生极强的搅拌力,将污水池内的沉积物搅拌成悬浮物,吸入泵内排出,提高了泵的防堵、排污能力,一次性完成了排水、清污、除淤、节约了运行成本,是具有明显的先进性和用性的环保产品。注:JYWQ、JBWQ为普通型自动搅匀排污泵;JPWQ为带不锈钢外套内循环冷却系统自动搅匀排污泵。
主要特点
1.当自动搅匀排污泵运转时,自动搅拌池底沉积物,彻底防止污物淤积,无须人工清理;
2.独特的叶轮设计,具有将纤维物、杂物切碎和撕裂的功能;
3.采用外循环冷却系统,使排污泵低水位运转,减少电机起动频率,延长电机寿命;
4.国家标准图集推荐产品;
5.上海市高新技术成果转化产品。
型号意义
例:80JYWQ50-10-1600-3
80-排出口径(mm)
JYWQ-自动搅匀排污泵
50-流量(m3/h) 10-扬程(m) 1600-搅匀范围(mm) 3-电机功率(KW)
主要用途
1.工厂、商业严重污染废水的排放。
2.城市污水处理厂、医院、宾馆的排水系统。
3.住宅区的污水排水站。
4.人防系统排水站、自来水厂的给水装置。
5.市政工程、建筑工地。
6.勘探、矿山、发电厂配套附机。
7.农村沼气池、农田灌溉、河塘清淤。
结构简图
![]() |
结构特点说明 1、采用独特的双流道无堵塞叶轮结构,提高污水污物的过流能力和排污能力。 2、自动搅拌装置,产生极强的搅拌力,将池内的沉淀物搅拌成悬浮物后吸入叶轮排出,达到清淤的作用。 3、隔板将底座一分为二,搅拌与进水互不影响。 4、机械密封为双端面机械密封,长期处于油室中,保证水泵安全可靠地运行。 5、副叶轮结构的流体动力密封,既有辅助密封作用,从而保护机械密封,又平衡轴向力,延长轴承的使用寿命。 6、泵连线腔内没有漏水检测探头,出现漏水时,探头发出信号,控制系统对泵实施保护,本公司可配全自动安全保护控制柜。 7、电机定子采用B级和F级绝缘,内设热保护器,当电机过载发热,保护器及时作出动作,对泵和电机实施绝对的保护。 8、油室内装有油水探头,当机械密封损坏后,水进入油室,探头发出信号由控制系统对水泵实施保护。 9、JPWQ带内循环冷却系统,能保证水泵在水池低水位正常工作。
|
|
1
|
主电缆
|
2
|
机壳
|
3
|
内循环套
|
4
|
油箱
|
5
|
副叶轮
|
6
|
叶轮
|
7
|
泵体
|
|
8
|
底座
|
9
|
隔板
|
10
|
油水控头
|
11
|
机械密封
|
13
|
搅拌件
|
-
|
-
|
-
|
-
|
性能参数表
| 序号 | 型号 |
排出 口径 (mm) |
额定 流量 (m3/h) |
额定 扬程 (m) |
搅拌 直径 (mm) |
转速 (r/min) |
效率 (%) |
自动 耦合器 |
| 1 | JYWQ50-12-15-1200-1.5 | 50 | 12 | 15 | 1200 | 2900 | 48 | CAK-50 |
| 2 | JYWQ50-20-7-1200-1.1 | 50 | 20 | 7 | 1200 | 2900 | 62 | CAK-50 |
| 3 | JYWQ50-10-10-1200-1.1 | 50 | 10 | 10 | 1200 | 2900 | 56 | CAK-50 |
| 4 | JYWQ50-15-15-1200-2.2 | 50 | 15 | 15 | 1200 | 2900 | 51 | CAK-50 |
| 5 | JYWQ50-25-10-1200-2.2 | 50 | 25 | 10 | 1200 | 2900 | 65 | CAK-50 |
| 6 | JYWQ50-15-20-1200-2.2 | 50 | 15 | 20 | 1200 | 2900 | 56 | CAK-50 |
| 7 | JYWQ50-20-15-1200-2.2 | 50 | 20 | 15 | 1200 | 2900 | 56 | CAK-50 |
| 8 | JYWQ50-42-9-1200-3 | 50 | 42 | 9 | 1200 | 2900 | 56 | CAK-50 |
| 9 | JYWQ50-17-25-1200-3 | 50 | 17 | 25 | 1200 | 2900 | 56 | CAK-50 |
| 10 | JYWQ50-25-22-1200-4 | 50 | 25 | 22 | 1200 | 2900 | 62 | CAK-50 |
| 11 | JYWQ50-40-15-1400-4 | 50 | 40 | 15 | 1400 | 2900 | 70 | CAK-50 |
| 12 | JYWQ50-25-32-1600-5.5 | 50 | 25 | 32 | 1600 | 2900 | 52 | CAK-50 |
| 13 | JYWQ50-40-30-1600-7.5 | 50 | 40 | 30 | 1600 | 2900 | 68 | CAK-50 |
| 14 | JYWQ65-25-15-1400-3 | 65 | 25 | 15 | 1400 | 2900 | 65 | CAK-65 |
| 15 | JYWQ65-37-13-1400-3 | 65 | 37 | 13 | 1400 | 2900 | 62 | CAK-65 |
| 16 | JYWQ65-25-28-1400-4 | 65 | 25 | 28 | 1400 | 2900 | 60 | CAK-65 |
| 17 | JYWQ80-40-7-1600-2.2 | 80 | 40 | 7 | 1600 | 2900 | 54 | CAK-80 |
| 18 | JYWQ80-29-8-1600-2.2 | 80 | 29 | 8 | 1600 | 2900 | 54 | CAK-80 |
| 19 | JYWQ80-43-13-1600-4 | 80 | 43 | 13 | 1600 | 2900 | 63 | CAK-80 |
| 20 | JYWQ80-50-10-1600-3 | 80 | 50 | 10 | 1600 | 1450 | 76 | CAK-80 |
| 21 | JYWQ80-40-15-1600-4 | 80 | 40 | 15 | 1600 | 2900 | 70 | CAK-80 |
| 22 | JYWQ80-60-13-1600-4 | 80 | 60 | 13 | 1600 | 2900 | 70 | CAK-80 |
| 23 | JYWQ80-35-25-1600-5.5 | 80 | 35 | 25 | 1600 | 2900 | 64 | CAK-80 |
| 24 | JYWQ80-50-25-1600-7.5 | 80 | 50 | 25 | 1600 | 2900 | 70 | CAK-80 |
| 25 | JYWQ80-50-30-1600-7.5 | 80 | 50 | 30 | 1600 | 2900 | 70 | CAK-80 |
| 26 | JYWQ100-80-9-2000-4 | 100 | 80 | 9 | 2000 | 1450 | 62 | CAK-100 |
| 27 | JYWQ100-110-10-2000-5.5 | 100 | 110 | 10 | 2000 | 1450 | 71 | CAK-100 |
| 28 | JYWQ100-70-15-2000-5.5 | 100 | 70 | 15 | 2000 | 1450 | 71 | CAK-100 |
| 29 | JYWQ100-100-15-2000-7.5 | 100 | 100 | 15 | 2000 | 1450 | 73 | CAK-100 |
| 30 | JYWQ100-80-20-2000-7.5 | 100 | 70 | 20 | 2000 | 2900 | 71 | CAK-100 |
| 31 | JYWQ100-50-35-2000-11 | 100 | 100 | 35 | 2000 | 2900 | 68 | CAK-100 |
| 32 | JYWQ100-70-22-2000-7.5 | 100 | 80 | 22 | 2000 | 2900 | 70 | CAK-100 |
| 33 | JYWQ100-100-22-2000-15 | 100 | 150 | 22 | 2000 | 1450 | 61 | CAK-100 |
| 34 | JYWQ100-80-30-2000-15 | 100 | 210 | 30 | 2000 | 1450 | 67 | CAK-100 |
| 35 | JYWQ150-150-10-2000-7.5 | 150 | 250 | 10 | 2000 | 1450 | 75 | CAK-150 |
| 36 | JYWQ150-210-7-2500-7.5 | 150 | 150 | 7 | 2500 | 1450 | 78 | CAK-150 |
| 37 | JYWQ150-250-6-2500-7.5 | 150 | 200 | 6 | 2500 | 1450 | 79 | CAK-150 |
| 38 | JYWQ150-150-15-2500-11 | 150 | 65 | 15 | 2500 | 1450 | 79 | CAK-150 |
| 39 | JYWQ150-200-10-2500-15 | 150 | 180 | 10 | 2500 | 1450 | 73 | CAK-150 |
| 40 | JYWQ150-65-40-3200-18.5 | 150 | 150 | 40 | 3200 | 1450 | 58 | CAK-150 |
| 41 | JYWQ150-180-22-2600-18.5 | 150 | 110 | 22 | 2600 | 1450 | 75 | CAK-150 |
| 42 | JYWQ150-150-26-2600-18.5 | 150 | 300 | 26 | 2600 | 1450 | 72 | CAK-150 |
| 43 | JYWQ150-110-30-2600-18.5 | 150 | 130 | 30 | 2600 | 1450 | 72 | CAK-150 |
| 44 | JYWQ150-300-15-2600-22 | 150 | 100 | 15 | 2600 | 1450 | 76 | CAK-150 |
| 45 | JYWQ150-130-30-2600-22 | 150 | 300 | 30 | 2600 | 1450 | 70 | CAK-150 |
| 46 | JYWQ150-100-40-3000-30 | 150 | 250 | 40 | 3000 | 1450 | 64 | CAK-150 |
| 47 | JYWQ200-300-7-3000-11 | 200 | 300 | 7 | 3000 | 1450 | 75 | CAK-200 |
| 48 | JYWQ200-250-11-3000-15 | 200 | 250 | 11 | 3000 | 1450 | 72 | CAK-200 |
| 49 | JYWQ200-300-10-3000-15 | 200 | 300 | 10 | 3000 | 1450 | 75 | CAK-200 |
| 50 | JYWQ200-250-15-3000-18.5 | 200 | 250 | 15 | 3000 | 1450 | 72 | CAK-200 |
| 51 | JYWQ200-400-10-3000-22 | 200 | 400 | 10 | 3000 | 1450 | 75 | CAK-200 |
| 52 | JYWQ200-200-20-3000-22 | 200 | 200 | 20 | 3000 | 1450 | 73 | CAK-200 |
| 53 | JYWQ200-250-22-3000-30 | 200 | 250 | 22 | 3000 | 1450 | 73 | CAK-200 |
| 54 | JYWQ250-600-7-3000-22 | 250 | 600 | 7 | 3000 | 1450 | 78 | CAK-250 |
| 55 | JYWQ250-600-9-3000-30 | 250 | 600 | 9 | 3000 | 1450 | 78 | CAK-250 |
使用注意事项
(1)运转前应用兆欧表检查电机定子绕组对地的绝缘电阻,低不得少于50兆欧。
(2)检查电缆有无破损、折断等现象。如有损伤须及时更换,以免漏电;电缆截面应与电流相匹配。
(3)电压超过额定电压的±10%时,不得启动电泵。
(4)以保证使用安全,必须将四芯电缆中的接地线可靠接地,以防发生触电事故。
(5)电泵潜入水中时,应垂直起吊,不允许横放着地,更不能陷入污泥中。停止使用时应将电泵吊起清洗干净,置于干燥处,并注意防冻。
(6)禁止将电缆作为安装起吊绳使用。
(7)检查转子运转方向,从上向下看应为顺时针方向旋转。
(8)室外的开关或接线端应有防雨、防潮措施,湿手或赤足时禁止触及开关,防止触电。
(9)移动电泵时,必须切断电源,电泵在运行时人不得接触水源,以防漏电发生人身事故。
(10)严禁电机缺相运转,如发现保险丝熔断,应检查原因后方可继续使用,不得任意加粗保险丝。
(11)泵运转时,应有专人管理,如发现有不正常现象应立即停机检查,排除故障。(指末配全自动保护柜的情况)。
(12)电泵在规定的工作介质条件下正常运行半年后,应检查油室密封状况,如油室中的油呈乳状或有水沉淀,应及时更换10~20号机械油和机械密封。对于在恶劣工作条件下使用的电泵,更应经常检修。
(13)用户应根据实际使用的工况选择合适的流量扬程,以达到佳使用效果,泵铭牌或说明书上所示参数为该佳使用工况点,用户可选在(0.7~1.2)倍佳流量内使用,禁止超流量使用,否则流量过大,扬程过低容易使电机过载。
故障的原因及解决方案
|
故障现象 |
原因分析 |
排除方法 |
|
JYWQ自动搅匀排污泵不能启动与运转 |
电压太低 |
调节电压或电压正常时工作 |
|
叶轮被杂物卡住 |
清除杂物 |
|
|
螺帽或平键损坏致使叶轮打滑 |
更换损坏零件 |
|
|
JYWQ自动搅匀排污泵超负荷 |
转子部件卡滞或过流部件被异物卡住 |
重新装配、清除异物 |
|
轴承损坏、轴变形 |
更换轴承、校正轴 |
|
|
JYWQ自动搅匀排污泵流量不足 |
吸入口或输出管被阻 |
清除杂物,保证畅通 |
|
电机转速低于额定转速 |
提高转速 |
|
|
叶轮打坏 |
更换叶轮 |
|
|
扬程过高 |
降低扬程 |
|
|
旋向相反 |
改换转向 |
|
|
介质太稠或供应量不畅通 |
冲稀介质,增大供应量 |
|
|
JYWQ自动搅匀排污泵噪声与振动 |
叶轮与泵体有磨擦 |
检查泵的装配并进行调整 |
|
轴承损坏或少油 |
更换轴承或加油 |
|
|
螺帽松动 |
更换螺帽 |
|
|
泵体中有杂物 |
清除杂物 |
|
|
吸入口有空气渗入 |
控制低水位 |
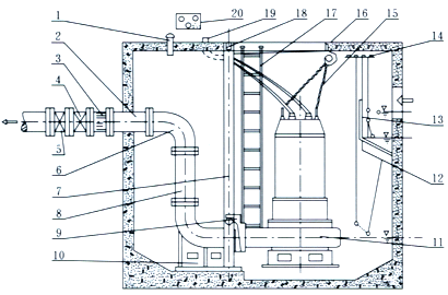
自动藕合式安装示意图
|
|
|
自动藕合式安装平面图

性能曲线图

使用条件
1、介质温度不超过60℃,介质重度为1~1.3kg/dm3,PH值在4~10范围内。
2、1Cr18Ni9ti不锈钢材质可适用各种腐蚀性介质。
注:用户如有特殊的介质、温度等要求,请要订货时注明输送介质详细情况,以便本公司提供更为可靠之产品.
订货须知

